株式会社24株式会社24

リビングの内装

ESTATE

新築戸建て自社物件

北葛城郡広陵町三吉 新築戸建て

価格:4,580万円
property29_01
previous arrow
next arrow
property29_01
property29_02
property29_03
property29_04
property29_05
property29_06
property29_07
property29_08
property29_09
property29_10
property29_11
property29_12
property29_13
property29_14
property29_15
property29_16
property29_17
property29_18
property29_19
property29_20
property29_21
property29_22
property29_23
property29_24
property29_25
property29_26
property29_27
property29_28
previous arrow
next arrow
  • 駐車スペース3台
  • 新しい分譲地内
  • PanasonicトリプルワイドIH
  • Panasonicフロントオープン食洗機
  • ミーレ洗濯乾燥機
  • 1階と2階にファミリークローゼット
  • 挽板フローリング(オイル塗装)
  • 制震ダンパー(MIRAIE Σ)
  • 断熱等級6
価格4,580万円
物件所在地奈良県北葛城郡広陵町大字三吉
最寄り駅近鉄大阪線 大和高田駅
小学校区広陵西小学校
敷地面積200.22㎡ (60.56坪)
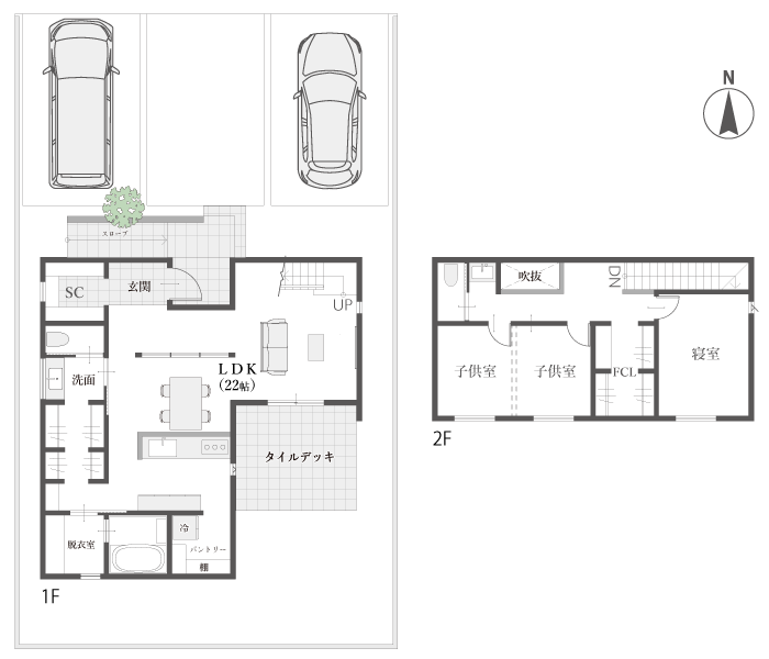
延床面積101.84㎡ (30.81坪)
構造木造2階建て
間取り2LDK+2S
駐車場3台
地目宅地
用途地域無指定
築年月2026年1月
建蔽率・容積率60%・200%
接道北側 公道 幅員6.0m
取引態様売主
権利形態所有権
特記事項現在モデルハウスとして公開中

この物件について問い合わせる

    まずは無料で相談したい方はこちら